FOR SALE
UNDER CONSTRUCTION
New Penthouse For Sale In Agios Spyridonas Area
Limassol, Agios Spyridonas
€265,000
+VAT
Share
Overview
Reference 8972
Bedrooms: 1
Bathrooms: 1
Floor: 2
Floors: 3
Parking Spaces: 1
Status: Under construction
Covered:58.5m²
Covered veranda:13m²
This one-bedroom, one-bathroom home offers a total internal space of 58.50 square meters and is situated on the top floor of a three-story building.
The apartment features high-quality finishes and a functional layout, perfect for those seeking comfort and style in a contemporary setting.

Agios Spyridonas is known for its welcoming community and convenient lifestyle. Within minutes, you will find shops, cafes, schools, and public transportation, making daily life comfortable and efficient.

*Location on map is indicative.
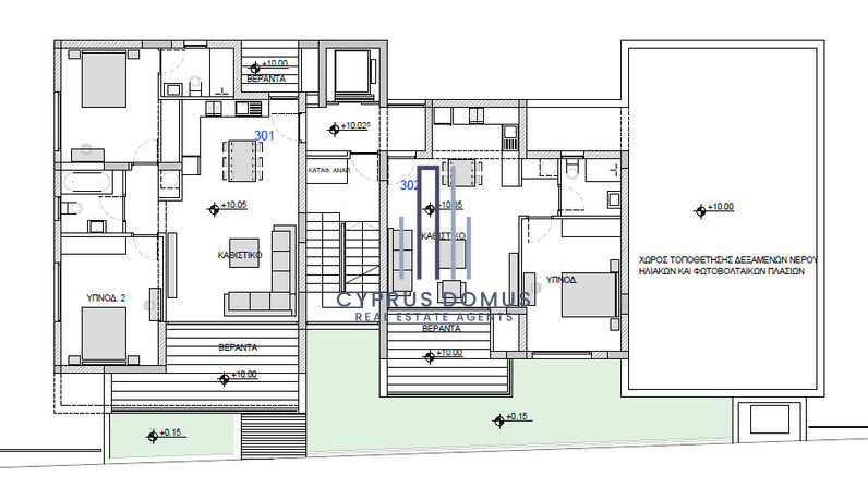
Floor Plans
Currency
Agent
Katerina Athini Admin katerina@cyprusdomus.com
Contact

Facilities
  • Parking, Covered
  • Storage
Features
  • Near amenities
Open on mobile

Similar Properties